Planritning
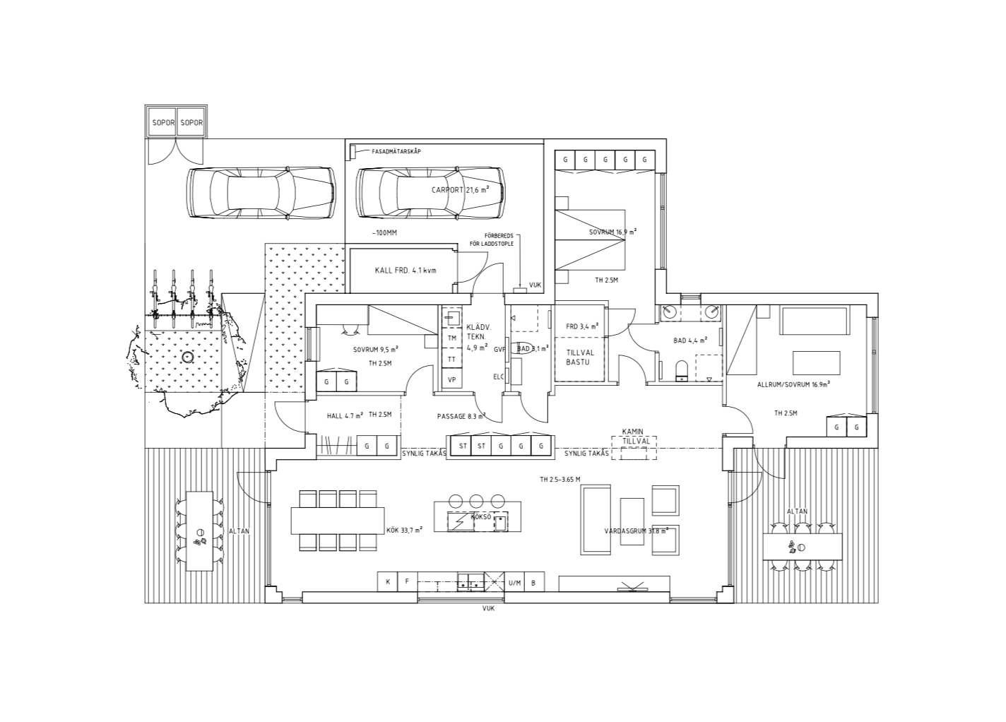
Husen i kvarteret Stybbet är äganderätter om 140 kvadratmeter fördelade på 3 sovrum, 2 badrum, hall, groventré, kök och vardagsrum, med möjlighet till ytterligare ett sovrum. Husens tak kläs i sedum och carportarna är utrustade med plats för laddstolpe till elbil. Trädgården färdigställs med sådd gräsmatta, planterade häckar och träd, samt planlagda uppfarter.